NOKKEN i de go'e gamle dage
Raadskade
Hovedgaden 26, raadskade
Image 1 of 13
Raadskade_001
Image 2 of 13
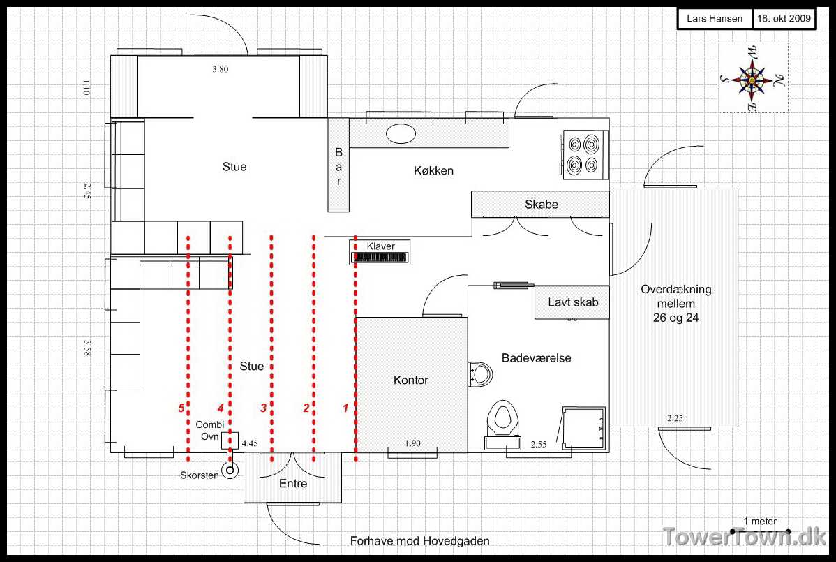
Grundplansskitse af huset Hovedgaden 26.

Bemærk spær 1 til 5 indikeret med rødt, som omtales i det følgende.
Grundplansskitse af huset Hovedgaden 26.

Bemærk spær 1 til 5 indikeret med rødt, som omtales i det følgende.
Raadskade_002
Image 3 of 13
Poul (Hovedgaden 32 og 28-sammen med Anni) udfordrer de raske spær i 80'erne.

Tallene indikerer de senere berørte spær omkring den utætte karnap over døren.
Poul (Hovedgaden 32 og 28-sammen med Anni) udfordrer de raske spær i 80'erne.

Tallene indikerer de senere berørte spær omkring den utætte karnap over døren.
Raadskade_003
Image 4 of 13
Puttemus demonstrerer de raske spær i 80'erne, hvor indsivningen måske er startet men endnu ikke manifesteret.

Dampspærreren af plastic har effektivt skjult problemet og forhindret opdagelse indefra.
Puttemus demonstrerer de raske spær i 80'erne, hvor indsivningen måske er startet men endnu ikke manifesteret.

Dampspærreren af plastic har effektivt skjult problemet og forhindret opdagelse indefra.
Raadskade_004
Image 5 of 13
Billede fra 2001 efter at det chokerende opdages at spær 2, 3 og 4 alle er knækkede tæt på indersiden af væggen.

Skaden blev først synlig efter en kraftig storm hvor spærene begyndte at hænge.
Billede fra 2001 efter at det chokerende opdages at spær 2, 3 og 4 alle er knækkede tæt på indersiden af væggen.

Skaden blev først synlig efter en kraftig storm hvor spærene begyndte at hænge.
Raadskade_005
Image 6 of 13
Efter fjernelse af vægbeklædningen, afsløres den alvorlige rådskade i væg og rem der uopdaget har udviklet sig bag isoleringens dampspærrer i årevis.

Det knækkede spær 3 skimtes lige til venstre for pyntebrædtet.
Efter fjernelse af vægbeklædningen, afsløres den alvorlige rådskade i væg og rem der uopdaget har udviklet sig bag isoleringens dampspærrer i årevis.

Det knækkede spær 3 skimtes lige til venstre for pyntebrædtet.
Raadskade_006
Image 7 of 13
Yderligere fjernelse af indervæg afslører at angrebet nåede hen forbi spær 4 der også var knækket i væggen.
Yderligere fjernelse af indervæg afslører at angrebet nåede hen forbi spær 4 der også var knækket i væggen.
Raadskade_007
Image 8 of 13
Af brandtekniske årsager er remmen over skorstenen i sin tid reduceret en del og efter rådangrebet er der ikke meget tilbage.
Af brandtekniske årsager er remmen over skorstenen i sin tid reduceret en del og efter rådangrebet er der ikke meget tilbage.
Raadskade_008
Image 9 of 13
Efter spær 4 bliver træværket hurtigt bedre. Spær 5 og remmen under er OK (ikke afbildet).
Efter spær 4 bliver træværket hurtigt bedre. Spær 5 og remmen under er OK (ikke afbildet).
Raadskade_010
Image 10 of 13
Spær 1 over væggen ind til kontoret (ref. den indledende tegning) ser OK ud men remmen som spæret hviler på skal tydeligvis inkluderes i rem-udskiftningen.
Spær 1 over væggen ind til kontoret (ref. den indledende tegning) ser OK ud men remmen som spæret hviler på skal tydeligvis inkluderes i rem-udskiftningen.
Raadskade_015
Image 11 of 13
Spær 2, 3 og 4 holdes oppe at midlertidige støtter indtil de bliver repareret og kan lægges til rette på en ny rem.
Spær 2, 3 og 4 holdes oppe at midlertidige støtter indtil de bliver repareret og kan lægges til rette på en ny rem.
Raadskade_011
Image 12 of 13
Udendørs ser træværket fint ud, men de berørte spærender (A) skal udskiftes således:

1 Understøt tagspæret (C).
2 Fjern gamle spærende (A).
3 Før nyt spær ud indefra.
4 Slids spærene indendørs.
5 Fastgør den nye spærende til tagspæret (C) og fjern understøttelsen.
Udendørs ser træværket fint ud, men de berørte spærender (A) skal udskiftes således:

1 Understøt tagspæret (C).
2 Fjern gamle spærende (A).
3 Før nyt spær ud indefra.
4 Slids spærene indendørs.
5 Fastgør den nye spærende til tagspæret (C) og fjern understøttelsen.
Raadskade_017
Image 13 of 13
Spærreparationen skal foretages som vist.

Det nye spær (B) skubbes ud gennem væggen og tilpasses til understøttelse af tag-spæret udendørs før det slidses sammen med det gamle spær (A) indendørs.
Spærreparationen skal foretages som vist.

Det nye spær (B) skubbes ud gennem væggen og tilpasses til understøttelse af tag-spæret udendørs før det slidses sammen med det gamle spær (A) indendørs.